Diese Wohnung ist im Moment vermietet oder reserviert. Schauen Sie sich gerne unsere anderen Wohnungen an:

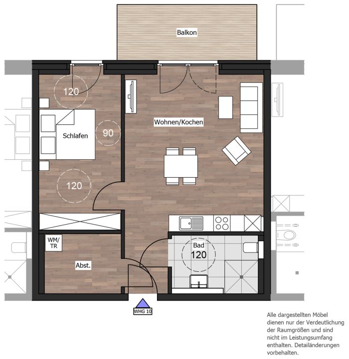
Wohnung 2.10 1. OG | 2 Zi
Größe
66,02 m²
Schlafzimmer
1
Bad
1
Küche
1
Terrasse/ Balkon
1
Johanniter-Notruf
24 Std.
Johanniter-Service
Glasfaser
TV-Anschluss
Ausstattung
Größe
66,02 m²
Schlafzimmer
1
Bad
1
Küche
1
Terrasse/ Balkon
1
Johanniter-Notruf
24 Std.
Johanniter-Service
Glasfaser
TV-Anschluss
Zimmeraufteilung
-
Wohnen/Kochen: 28,62 m²
-
Schlafen: 16,79 m²
-
Bad: 6,30 m²
-
Flur: 3,44 m²
-
Abst.: 5,87 m²
-
Balkon (1/2): 5,00 m²
Zimmeraufteilung
-
Wohnen/Kochen: 28,62 m²
-
Schlafen: 16,79 m²
-
Bad: 6,30 m²
-
Flur: 3,44 m²
-
Abst.: 5,87 m²
-
Balkon (1/2): 5,00 m²
Erdgeschoss-Wohnungen

vermietet
Wohnung 1.01 EG | 2 Zi
Zimmeraufteilung
-
Wohnen/ Kochen: 24,64 m²
-
Schlafen: 13,93 m²
-
Bad: 6,60 m²
-
Flur: 3,44 m²
-
Abst.: 6,21 m²
-
Terrasse (1/2): 5,80 m²
vermietet
Wohnung 1.02 EG | 2 Zi
Zimmeraufteilung
-
Wohnen/Kochen: 16,99 m²
-
Schlafen: 8,76 m²
-
Bad: 6,04 m²
-
Flur: 4,60 m²
-
Abst.: 5,63 m²
-
Terrasse (1/2): 5,60 m²
vermietet
Wohnung 1.03 EG | 2 Zi
Zimmeraufteilung
-
Wohnen/ Kochen: 19,56 m²
-
Schlafen: 16,13 m²
-
Bad: 7,75 m²
-
Flur: 4,54 m²
-
Abst.: 5,96 m²
-
Terrasse (1/2): 5,60 m²
frei
Wohnung 1.04 EG | 2 Zi
Zimmeraufteilung
-
Wohnen / Kochen: 38,56 m²
-
Schlafen: 12,05 m²
-
Bad: 5,69 m²
-
Abst. 1: 4,04 m²
-
Abst. 2: 4,23 m²
-
Flur: 4,55 m²
-
Terrasse (1/2): 5,60 m²
vermietet
Wohnung 1.05 EG | 2 Zi
Zimmeraufteilung
-
Wohnen / Kochen: 38,56 m²
-
Schlafen: 12,05 m²
-
Bad: 5,69 m²
-
Abst. 1: 4,04 m²
-
Abst. 2: 4,23 m²
-
Flur: 4,55 m²
-
Terrasse (1/2): 5,60 m²
vermietet
Wohnung 1.06 EG | 2 Zi
Zimmeraufteilung
-
Wohnen / Kochen: 19,56 m²
-
Schlafen: 16,13 m²
-
Bad: 7,71 m²
-
Abst.: 5,96 m²
-
Flur: 4,54 m²
-
Terrasse (1/2): 5,60 m²
vermietet
Wohnung 2.01 EG | 2 Zi
Zimmeraufteilung
-
Wohnen / Kochen: 27,60 m²
-
Schlafen: 8,82 m²
-
Bad: 6,04 m²
-
Abst.: 5,97 m²
-
Flur: 1,97 m²
-
Terrasse (1/2): 5,00 m²
frei
Wohnung 2.02 EG | 2 Zi
Zimmeraufteilung
-
Wohnen / Kochen: 30,02 m²
-
Schlafen: 16,50 m²
-
Bad: 5,99 m²
-
Abst.: 6,26 m²
-
Flur: 2,33 m²
-
Terrasse (1/2): 5,60 m²
frei
Wohnung 2.03 EG | 2 Zi
Zimmeraufteilung
-
Wohnen / Kochen 28,62 m²
-
Schlafen 16,79 m²
-
Bad 6,30 m²
-
Abst. 5,87 m²
-
Flur 3,44 m²
-
Terrasse (1/2) 5,60 m²
frei
Wohnung 2.04 EG | 2 Zi
Zimmeraufteilung
-
Wohnen / Kochen: 25,12 m²
-
Schlafen: 16,79 m²
-
Bad: 7,79 m²
-
Abst.: 5,87 m²
-
Flur: 5,41 m²
-
Terrasse (1/2): 5,60 m²
vermietet
Wohnung 2.05 EG | 2 Zi
Zimmeraufteilung
-
Wohnen / Kochen: 37,58 m²
-
Schlafen: 13,92 m²
-
Bad: 5,69 m²
-
Abst.: 8,96 m²
-
Flur: 3,72 m²
-
Terrasse (1/2): 5,60 m²
frei
Wohnung 2.06 EG | 2 Zi
Zimmeraufteilung
-
Wohnen / Kochen: 31,99 m²
-
Schlafen: 13,92 m²
-
Bad: 5,69 m²
-
Abst.: 7,22 m²
-
Flur: 3,72 m²
-
Terrasse (1/2): 6,00 m²
vermietet
Wohnung 2.07 EG | 2 Zi
Zimmeraufteilung
-
Wohnen / Kochen: 19,49 m²
-
Schlafen: 16,13 m²
-
Bad: 7,71 m²
-
Abst.: 5,93 m²
-
Flur: 4,50 m²
-
Terrasse (1/2): 5,25 m²
1.OG-Wohnungen

vermietet
Wohnung 1.07 1. OG | 2 Zi
Zimmeraufteilung
-
Wohnen / Kochen 16,75 m²
-
Schlafen 11,22 m²
-
Bad 6,00 m²
-
Abst. 5,71 m²
-
Flur 5,58 m²
-
Balkon (1/2) 5,00 m²
vermietet
Wohnung 1.08 1. OG | 2 Zi
Zimmeraufteilung
-
Wohnen / Kochen 17,30 m²
-
Schlafen 11,22 m²
-
Bad 6,00 m²
-
Abst. 5,93 m²
-
Flur 5,50 m²
-
Balkon (1/2) 5,00 m²
vermietet
Wohnung 1.09 1. OG | 2 Zi
Zimmeraufteilung
-
Wohnen / Kochen 33,88 m²
-
Schlafen 13,93 m²
-
Bad 5,95 m²
-
Abst. 8,54 m²
-
Flur 2,04 m²
-
Balkon (1/2) 5,00 m²
vermietet
Wohnung 1.10 1. OG | 2 Zi
Zimmeraufteilung
- Wohnen / Kochen 24,27 m²
- Schlafen 13,93 m²
- Bad 6,30 m²
- Abst. 6,07 m²
- Flur 3,44 m²
- Balkon (1/2) 5,00 m²
vermietet
Wohnung 1.11 1. OG | 2 Zi
Zimmeraufteilung
- Wohnen / Kochen 19,56 m²
- Schlafen 16,13 m²
- Bad 7,71 m²
- Abst. 5,96 m²
- Flur 4,54 m²
- Balkon (1/2) 5,00 m²
vermietet
Wohnung 1.12 1. OG | 2 Zi
Zimmeraufteilung
- Wohnen / Kochen 38,56 m²
- Schlafen 12,05 m²
- Bad 5,69 m²
- Abst. 1 4,04 m²
- Abst. 2 4,32 m²
- Flur 4,46 m²
- Balkon (1/2) 5,00 m²
vermietet
Wohnung 1.13 1. OG | 2 Zi
Zimmeraufteilung
- Wohnen / Kochen 38,56 m²
- Schlafen 12,05 m²
- Bad 5,69 m²
- Abst. 1 4,04 m²
- Abst. 2 4,32 m²
- Flur 4,46 m²
- Balkon (1/2) 5,00 m²
vermietet
Wohnung 1.14 1. OG | 2 Zi
Zimmeraufteilung
- Wohnen / Kochen 19,56 m²
- Schlafen 16,13 m²
- Bad 7,71 m²
- Abst. 5,96 m²
- Flur 4,54 m²
- Balkon (1/2) 5,00 m²
vermietet
Wohnung 2.08 1. OG | 3 Zi
Zimmeraufteilung
- Wohnen / Kochen 26,87 m²
- Schlafen 13,95 m²
- Zimmer 11,09 m²
- Bad 5,61 m²
- Gäste WC 2,13 m²
- Abst. 9,61 m²
- Flur 1,98 m²
- Balkon (1/2) 5,00 m²
frei
Wohnung 2.09 1. OG | 2 Zi
Zimmeraufteilung
- Wohnen / Kochen 31,83 m²
- Schlafen 16,50 m²
- Bad 5,99 m²
- Abst. 7,76 m²
- Flur 6,56 m²
- Balkon (1/2) 5,00 m²
vermietet
Wohnung 2.10 1. OG | 2 Zi
Zimmeraufteilung
- Wohnen / Kochen 28,62 m²
- Schlafen 16,79 m²
- Bad 6,30 m²
- Abst. 5,87 m²
- Flur 3,44 m²
- Balkon (1/2) 5,00 m²
vermietet
Wohnung 2.11 1. OG | 2 Zi
Zimmeraufteilung
- Wohnen / Kochen 25,12 m²
- Schlafen 16,79 m²
- Bad 7,79 m²
- Abst. 5,87 m²
- Flur 5,41 m²
- Balkon (1/2) 5,00 m²
vermietet
Wohnung 2.12 1. OG | 2 Zi
Zimmeraufteilung
- Wohnen / Kochen 37,58 m²
- Schlafen 13,92 m²
- Bad 5,69 m²
- Abst. 9,11 m²
- Flur 3,72 m²
- Balkon (1/2) 5,00 m²
vermietet
Wohnung 2.13 1. OG | 2 Zi
Zimmeraufteilung
- Wohnen / Kochen 31,99 m²
- Schlafen 13,92 m²
- Bad 5,69 m²
- Abst. 7,37 m²
- Flur 3,72 m²
- Balkon (1/2) 5,00 m²
vermietet
Wohnung 2.14 1. OG | 2 Zi
Zimmeraufteilung
- Wohnen / Kochen 19,49 m²
- Schlafen 16,13 m²
- Bad 7,75 m²
- Abst. 5,93 m²
- Flur 4,50 m²
- Balkon (1/2) 5,00 m²
Staffelgeschoss-Wohnungen

vermietet
Wohnung 1.15 2. OG | 2 Zi
Zimmeraufteilung
-
Wohnen / Kochen 16,75 m²
-
Schlafen 11,22 m²
-
Bad 6,00 m²
-
Abst. 5,82 m²
-
Flur 5,58 m²
-
Balkon (1/2) 5,00 m²
vermietet
Wohnung 1.16 2. OG | 2 Zi
Zimmeraufteilung
-
Wohnen / Kochen 17,30 m²
-
Schlafen 11,22 m²
-
Bad 6,00 m²
-
Abst. 6,05 m²
-
Flur 5,50 m²
-
Balkon (1/2) 5,00 m²
vermietet
Wohnung 1.17 2. OG | 2 Zi
Zimmeraufteilung
-
Wohnen / Kochen 33,88 m²
-
Schlafen 13,93 m²
-
Bad 5,95 m²
-
Abst. 8,67 m²
-
Flur 2,04 m²
-
Balkon (1/2) 5,00 m²
vermietet
Wohnung 1.18 2. OG | 2 Zi
Zimmeraufteilung
-
Wohnen / Kochen 24,27 m²
-
Schlafen 13,93 m²
-
Bad 6,30 m²
-
Abst. 6,19 m²
-
Flur 3,44 m²
-
Balkon (1/2) 5,00 m²
vermietet
Wohnung 1.19 2. OG | 2 Zi
Zimmeraufteilung
-
Wohnen / Kochen 19,56 m²
-
Schlafen 16,50 m²
-
Bad 7,71 m²
-
Abst. 9,08 m²
-
Flur 4,54 m²
-
Balkon (1/2) 5,00 m²
vermietet
Wohnung 1.20 2. OG | 2 Zi
Zimmeraufteilung
-
Wohnen / Kochen 19,56 m²
-
Schlafen 16,50 m²
-
Bad 7,71 m²
-
Abst. 9,04 m²
-
Flur 4,54 m²
-
Balkon (1/2) 5,00 m²
vermietet
Wohnung 2.15 2. OG | 3 Zi
Zimmeraufteilung
-
Wohnen / Kochen 26,87 m²
-
Schlafen 13,95 m²
-
Zimmer 11,09 m²
-
Bad 5,61 m²
-
Gäste WC 2,13 m²
-
Abst. 9,75 m²
-
Flur 1,98 m²
-
Balkon (1/2) 5,00 m²
vermietet
Wohnung 2.16 2. OG | 2 Zi
Zimmeraufteilung
-
Wohnen / Kochen 31,83 m²
-
Schlafen 16,50 m²
-
Bad 5,99 m²
-
Abst. 7,93 m²
-
Flur 6,56 m²
-
Balkon (1/2) 5,00 m²
vermietet
Wohnung 2.17 2. OG | 2 Zi
Zimmeraufteilung
-
Wohnen / Kochen 28,62 m²
-
Schlafen 16,79 m²
-
Bad 6,30 m²
-
Abst. 6,05 m²
-
Flur 3,44 m²
-
Balkon (1/2) 5,00 m²
vermietet
Wohnung 2.18 2. OG | 2 Zi
Zimmeraufteilung
-
Wohnen / Kochen 25,12 m²
-
Schlafen 16,79 m²
-
Bad 7,79 m²
-
Abst. 6,05 m²
-
Flur 5,41 m²
-
Balkon (1/2) 5,00 m²
vermietet
Wohnung 2.19 2. OG | 2 Zi
Zimmeraufteilung
-
Wohnen / Kochen 37,58 m²
-
Schlafen 13,92 m²
-
Bad 5,69 m²
-
Abst. 9,08 m²
-
Flur 3,72 m²
-
Balkon (1/2) 5,00 m²
vermietet
Wohnung 2.20 2. OG | 2 Zi
Zimmeraufteilung
-
Wohnen / Kochen 31,99 m²
-
Schlafen 13,92 m²
-
Bad 5,69 m²
-
Abst. 7,34 m²
-
Flur 3,72 m²
-
Balkon (1/2) 5,00 m²
vermietet
Wohnung 2.21 2. OG | 2 Zi
Zimmeraufteilung
-
Wohnen / Kochen 19,49 m²
-
Schlafen 16,13 m²
-
Bad 7,71 m²
-
Abst. 6,09 m²
-
Flur 4,50 m²
-
Balkon (1/2) 5,00 m²





